Wettbewerb | Business-Hotel und Mobilitätsstation
Reutlingen, DE


Auftrag Schöller Firmengruppe
Architektur Riehle+Assoziierte
Bildrechte Riehle+Assoziierte
Leistungen Tragwerksplanung
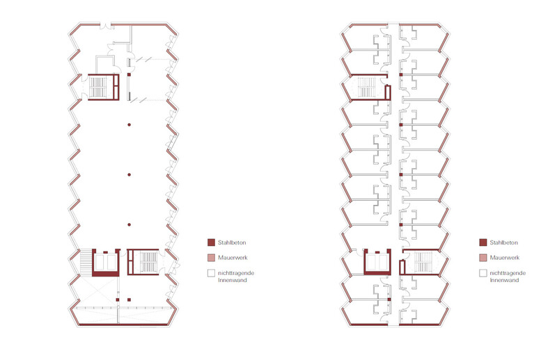
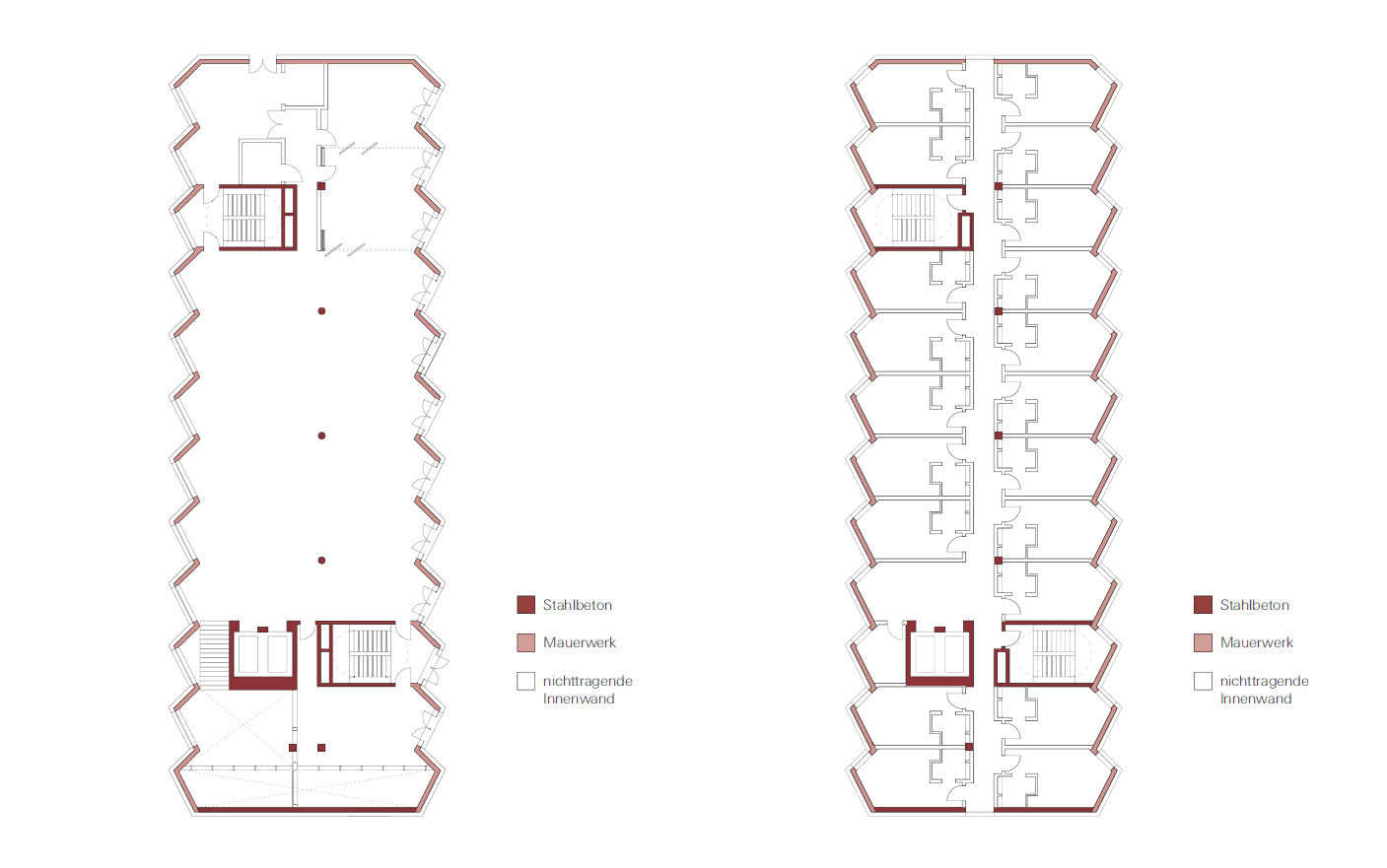
Materialien Stahlbeton, Mauerwerk
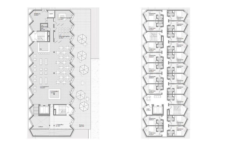
Fläche 6000 m²
Planungszeitraum 2017

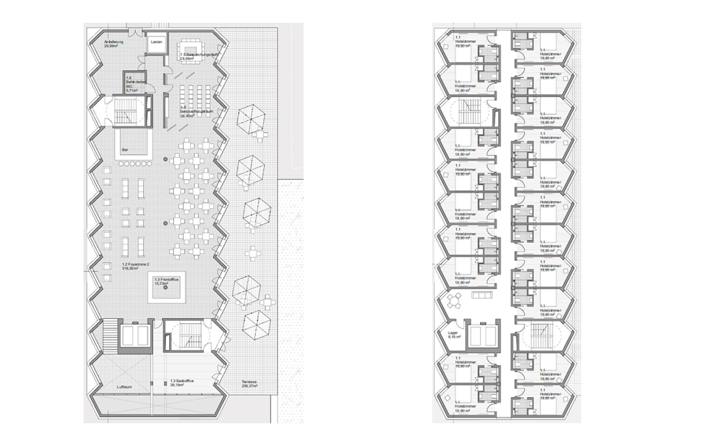
Der vorgeschlagene Entwurf eines kompakten, markanten 7-geschossigen Hotelgebäudes auf einem, die dienenden Räume und das Mobilitätszentrum aufnehmenden, Sockel ist die Antwort auf einen heterogenen städtebaulichen Kontext und die differenzierten Anforderungen der Auslobung.

Durch die Ausnutzung der Topographie und die Setzung des Sockels werden zum einen die Flächenanforderungen sinnfällig auf dem Grundstück verteilt, zum anderen entsteht ein angemessener Bahnhofsplatz, der die multiplen Mobilitätsanforderungen unaufgeregt löst und gleichzeitig Aufenthaltsqualität entstehen lässt.

Das Hybridtragwerk in Stahlbetonskelettbauweise mit tragenden Mauerwerksaußenwänden garantiert ein hohes Maß an Flexibilität und Wirtschaftlichkeit.